A4
A4 ARCHITEKTUR

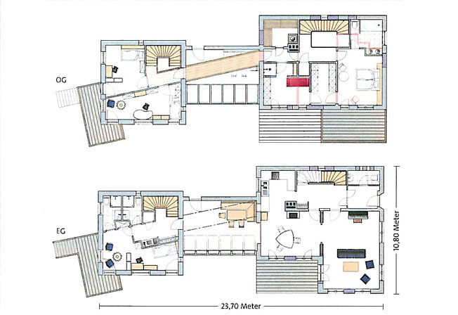
Umbau und Erweiterung einer Villa für eine fünfköpfige Familie.
Kinderwohnturm, Sauna, Ökologischer Schwimmteich, Garage.

 

Wohnfläche: 386 m2