A4
A4 ARCHITEKTUR

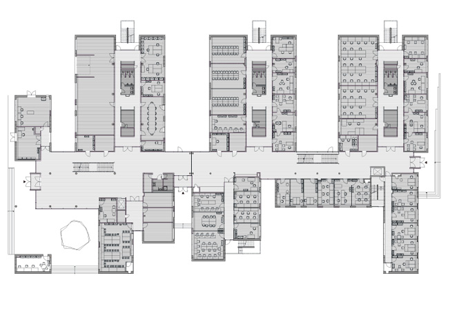
Neubau der Universität für Informatik und Automatisierung in Ilmenau-Thüringen.
Gesamtnutzfläche: ca. 6000m2.