Home
Büro
Projekte
Wohnen
Gewerbe
Öffentl. Bauten
Wettbewerbe
Links
Kontakt
Impressum
Datenschutz
Berufsschule Burgstraße
Berufsschule Hinrichsenstrasse
TU Ilmenau
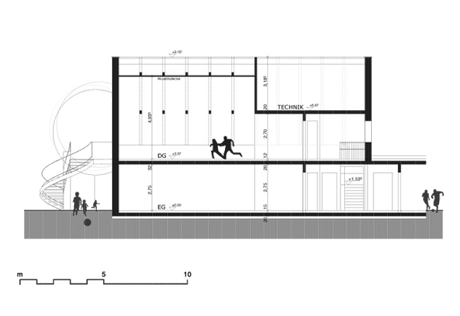
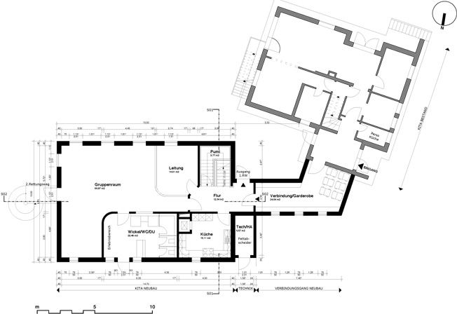
Erweiterung Kita
Grundschule HH-Hamm
Haspa Große Bleichen
Planung und Erweiterung einer Kindertagesstätte.